Over deze woning
Zoek je een woning op een uitstekende locatie, dicht bij het centrum, zwembad, sportvelden, scholen en met snelle toegang tot de A1? Plan dan nu je bezichtiging bij de Wijnand Zeeuwstraat 52 in Rijssen!
+ Goed onderhouden hoekwoning
+ Ruime tuin met veel privacy
+ Vier slaapkamers en een tweede verdieping
+ Eigen oprit met ruimte voor twee auto’s
+ Tien zonnepanelen en energielabel B
+ Scholen als “Johan Frisoschool”, “Willem Alexanderschool” en “Brekeldschool” op loopafstand
Een woning die volop mogelijkheden biedt, met maar liefst drie slaapkamers op de eerste verdieping en een vierde slaapkamer op de tweede verdieping. De badkamer en keuken zijn recent volledig vernieuwd en in 2023 zijn er maar liefst tien zonnepanelen geplaatst! Een woning om optimaal van te genieten, zowel binnen als buiten. In de fraai aangelegde tuin met overkapping geniet je namelijk van veel groen en volledige privacy. En met diverse fijne wandelgebieden als het “Hertenkamp” en “de Borkeld” op loopafstand kun je vanaf deze woning ook heerlijk de rust van de natuur opzoeken.
Ben je nieuwsgierig naar de woning? We laten je graag meer zien tijdens een bezichtiging..
Laten we de indeling vast met je doornemen..
Via de voordeur kom je in de hal, waar zich de vaste trap naar de eerste verdieping bevindt, een trapkast, het toilet en de deur naar de keuken. De keuken staat in open verbinding met de woonkamer en beschikt over een fraaie inbouwkeuken die in 2023 is geplaatst. Deze inbouwkeuken is voorzien van apparatuur zoals een vaatwasser, kookplaat, combi-magnetron, koelkast en veel kastruimte dankzij de bovenkasten. Middels een deur naar de tuin is ook de berging bereikbaar, waar zich de aansluitingen voor wasmachine en droger bevinden, evenals een handige bergzolder. De woonkamer gelegen aan de voorzijde van de woning, heeft dankzij de vele raampartijen een fijne en natuurlijke lichtinval.
Even naar boven..
Op de eerste verdieping bevinden zich de badkamer en drie slaapkamers waarvan twee slaapkamers voorzien zijn van vaste kasten. De badkamer, geplaatst in 2023, is modern ingericht en beschikt over een inloopdouche, wastafel en toilet. Via de overloop is de vaste trap naar de tweede verdieping te bereiken.
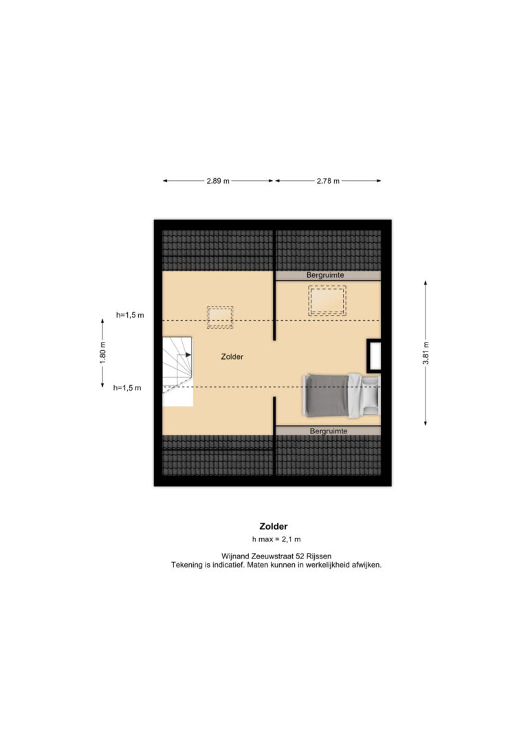
Op de tweede verdieping bevindt zich een ruime vierde slaapkamer en een extra ruimte die momenteel wordt gebruikt als bergruimte, maar ook een fijne werkplek kan worden!
Bijzonderheden:
- Voorzien van dak-, vloer- en muurisolatie;
- Energielabel B;
- Hoofdtuin van maar liefst 184 m²
- Aanvaarding op korte termijn
Vermelde maatvoeringen en gepubliceerde plattegronden zijn opgesteld binnen de kaders van de Branche Brede Meetinstructie; gebaseerd op NEN2580, met een onderverdeling in verschillende gebruiksoppervlakten. Omdat de publicatie ingevoerde gegevens via diverse, externe kanalen geschiedt, kan Daan Makelaars BV geen aansprakelijkheid aanvaarden voor onjuiste weergave van informatie.
| Adres | Wijnand Zeeuwstraat 52 |
| Plaats | Rijssen |
| Postcode | 7462 DG |
| Koopprijs | € 359.000,- k.k. |
| Status | Verkocht |
| Aanvaarding | In overleg |
| Soort object | Woonhuis |
| Soort woning | Eengezinswoning |
| Type woning | Hoekwoning |
| Bouwjaar | 1965 |
| Bouwvorm | Bestaande bouw |
| Liggingen | Aan drukke weg |
| Woonoppervlakte | 85 m2 |
| Perceeloppervlakte | 265 m2 |
| Overige inpandige ruimte | 0 m2 |
| Externe bergruimte | 13 m2 |
| Inhoud | 297 m3 |
| Aantal kamers | 6 |
| Aantal slaapkamers | 4 |
| Tuin | Achtertuin, Voortuin, Zijtuin |
| Hoofdtuin | Achtertuin |
| Oppervlakte | 184 m2 |
| Ligging hoofdtuin | Noord |
| Achterom | Ja |
| Kwaliteit tuin | Fraai aangelegd |
| Schuur / Berging | Aangebouwd steen |
| Totaal aantal | 1 |
| Isolatie | Dakisolatie, Muurisolatie, Vloerisolatie, Grotendeels dubbelglas |
| Warmwater | CV ketel |
| Verwarming | CV ketel |
| C.V.-Ketel | Nefit HR-107 |
| Soort dak | Zadeldak |
| Overige voorzieningen | Rolluiken, Buitenzonwering, Dakraam, Zonnepanelen |
| Permanente bewoning | Ja |
| Onderhoud binnen | Goed |
| Onderhoud buiten | Goed |
| Huidig gebruik | Woonruimte |
| Huidige bestemming | Woonruimte |
| Gemeente | Rijssen |
| Sectie | H |
| Perceelnummer | 2756 |
| Oppervlakte | 265 m2 |
| Eigendomssituatie | Volle eigendom |
U kunt hier de brochure van de woning downloaden.
Download brochure