Provincialeweg Zuna 15

7466 PJ Zuna € 695.000,- v.o.n.

Over deze woning

Perceel 10.000 m2

Plan een bezichtiging met Daan

0548-722044

[email protected]

Unieke kans: nieuw te bouwen woning op royaal perceel van ca. 10.000 m² in Zuna

Op een schitterende locatie aan de Provincialeweg 15 in Zuna bieden wij deze royale kavel te koop aan. Een droomplek voor wie houdt van ruimte, rust en het buitenleven, met alle gemakken van stadse voorzieningen op korte afstand.

Vrije bouw en aannemerskeuze
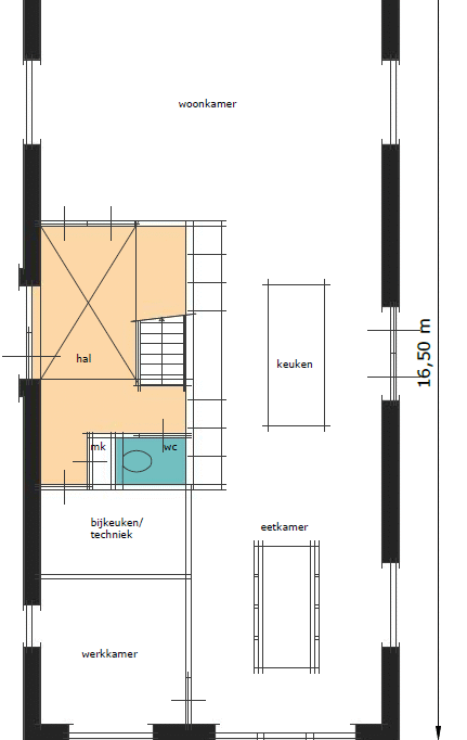
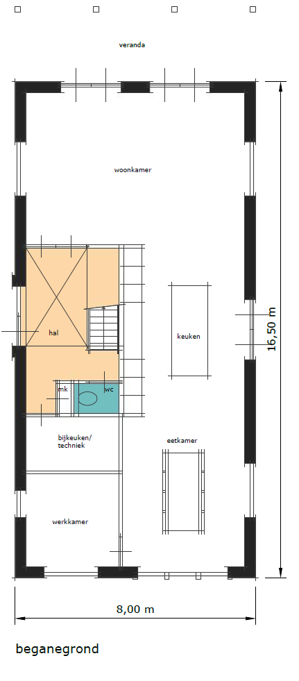
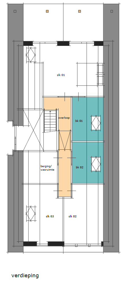
Bij deze kavel ben je volledig vrij in de keuze van architect en aannemer. Vanuit de gemeentelijke richtlijnen zal er in principe in ‘schuurtypologie’ gebouwd moeten worden. Ter inspiratie zijn in de verkooppresentatie enkele voorbeeldwoningen toegevoegd.

Een bijzonder erfconcept
De woning wordt gerealiseerd op een nieuw te ontwikkelen knooperf, waar landelijke architectuur en modern wooncomfort naadloos samenkomen. Het erf biedt volop mogelijkheden om jouw eigen buitenleven te creëren: denk aan een ruime tuin, boomgaard, hobbyweide of een bijgebouw in de stijl van de woning.

Royale kavel
Met een perceelgrootte van circa 10.000 m² geniet je van ongekende vrijheid en privacy. De ligging, omringd door uitgestrekte weilanden, garandeert een weids uitzicht en een gevoel van pure rust.

De omgeving
De villa ligt aan de parallelweg van de doorgaande route tussen Nijverdal en Rijssen. Dankzij de vrije ligging in het buitengebied ervaar je dagelijks het landelijke leven op zijn best, met indrukwekkende vergezichten en volop privacy.

De bereikbaarheid is uitstekend: de A35 bevindt zich op slechts enkele minuten rijden. Voorzieningen zoals winkels, scholen, horeca en supermarkten zijn binnen 5 tot 10 minuten fietsen bereikbaar.

Zin in natuur en ontspanning? Nationaal Park De Sallandse Heuvelrug ligt letterlijk om de hoek — ideaal voor wandelen, fietsen of gewoon genieten van de rust.

Samengevat
• Unieke kavel op een toplocatie
• Bestemming Buitengebied gemeente Wierden van toepassing
• Bouwvolume 1000 m3
• Vrije bouw- en aannemerskeuze
• Royaal perceel van ca. 10.000 m²
• Prachtige vergezichten en veel privacy
• Op enkele minuten van Nijverdal, Rijssen en de A35
• Natuurrijke omgeving nabij Nationaal Park De Sallandse Heuvelrug

Een unieke kans om jouw droomwoning geheel naar eigen wens te realiseren op een uitzonderlijke locatie in het prachtige buitengebied van Zuna. Neem gerust contact op voor meer informatie over de mogelijkheden!

Wij hebben maximale aandacht besteed aan de samenstelling van deze informatie.
Desondanks aanvaarden wij geen enkele aansprakelijkheid indien deze informatie onvolledig is, onjuistheden bevat of anderszins en aanvaarden we eveneens geen aansprakelijkheid voor de gevolgen daarvan.
Alle vermelde maten en oppervlaktes zijn indicatief en kunnen iets afwijken van de werkelijke situatie. Van toepassing zijn de NVM-voorwaarden.

Adres Provincialeweg Zuna 15
Plaats Zuna
Postcode 7466 PJ
Koopprijs € 695.000,- v.o.n.
Status Beschikbaar
Aanvaarding In overleg
Soort object Woonhuis
Bouwvorm Niet van toepassing
Liggingen Aan bosrand, Aan rustige weg, Vrij uitzicht, Buiten bebouwde kom, Landelijk gelegen
Perceeloppervlakte 10.000 m2
Inhoud 0 m3
Totaal aantal 0
Permanente bewoning Ja
Huidig gebruik bouwgrond
Huidige bestemming bouwgrond
Gemeente Wierden
Sectie Y
Perceelnummer 43
Oppervlakte 10.000 m2
Eigendomssituatie Volle eigendom